Характеристики :
Каркас модулей сборно-разборный, на болтовом соединении:
- Периметр каркаса основания выполнен из металлического, гнутого спец. профиля высотой 150 мм, толщина металла t = 3 мм; лаги выполнены из гнутого металлического швеллера;
- Несущие опорные углы выполнены из металлического, гнутого спец. профиля;
- Каркас основания и покрытие оборудованы такелажными фитингами, выполненными из листового металла;
- Все деревянные элементы каркаса обрабатываются огне-био-защитой;
- Все элементы каркаса покрываются антикоррозионной грунтовкой, в два слоя;
Пол:
- Подшивка основания оцинкованным гладким листом;
- Утепление плитами экструдированного пенополистирола;
- Настил пола металлическим рифленым листом. Настил покрывается антикоррозионной грунтовкой, в один слой; Настил окрашивается износостойкой эмалью, серого цвета.
Потолок:
- Гидроизоляционное покрытие из ПВХ мембраны;
- Сплошная обрешетка ориентированно-стружечными плитами;
- Утепление минеральной ватой (базальт);
- Обрешетка деревянным брусом;
- Пароизоляционная мембрана;
- Обрешетка деревянной доской (сосна);
- Профильный металлический лист с полимерным покрытием;
Наружные стены:
- сборные, из сэндвич-панелей:
- Наружная сторона – профильный металлический лист с полимерным покрытием;
- Утеплитель: пенополиуретан;
- Внутренняя сторона – гладкий металлический лист с полимерным покрытием;
Секционные ворота:
- Секционные ворота из сэндвич-панелей, с прозрачными вставками, ручной механизм, с дверью – 2 шт.;
Освещение:
- LED светильник, 36W, линейный – 12 шт.;
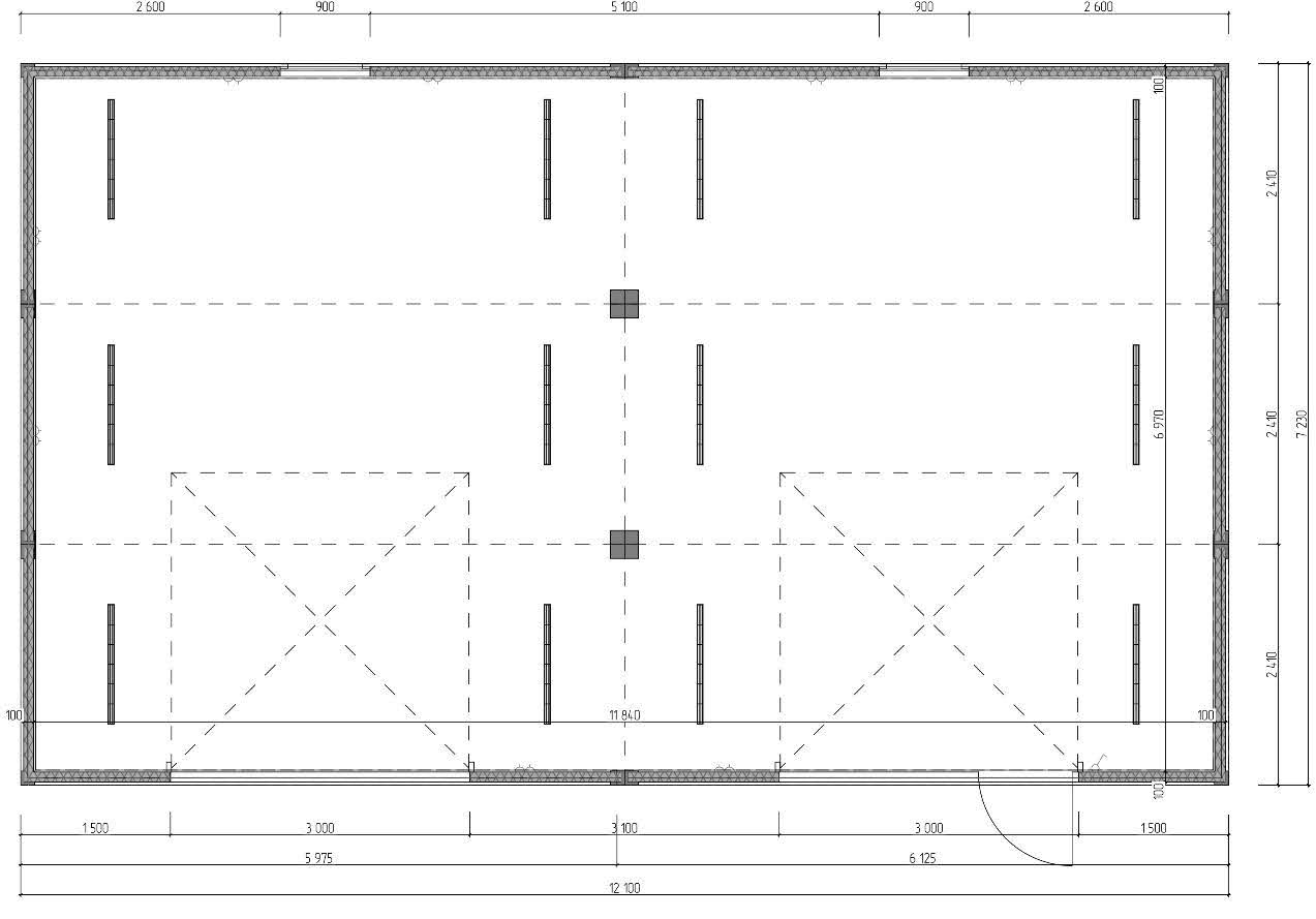
План :




