Характеристики :
Каркас модулів збірно-розбірний, на болтовому з’єднанні:
- Периметр каркасу основи виконано з металевого, гнутого спец. профілю висотою 150мм, товщина металу t=3мм; лаги виконано з гнутого металевого швелера;
- Несучі опорні кути виконано з металевого, гнутого спец. профілю;
- Каркас основи та покриття обладнані такелажними фітингами, виконаними з листового металу;
- Всі дерев’яні елементи каркасу обробляються вогне-біо-захистом;
- Всі елементи каркасу покриваються антикорозійним ґрунтом, в два шари;
Підлога:
- Підшивка основи оцинкованим гладким листом;
- Утеплення плитами екструдованого пінополістиролу;
- Настил підлоги металевим рифленим листом. Настил покривається антикорозійним ґрунтом, в один шар; Настил забарвлюється зносостійкою емаллю, сірого кольору.
Стеля:
- Гідроізоляційне покриття з ПВХ мембрани;
- Суцільна обрешітка орієнтовано-стружковими плитами;
- Утеплення мінеральною ватою (базальт);
- Обрешітка дерев’яним брусом;
- Пароізоляційна мембрана;
- Обрешітка дерев’яною дошкою (сосна);
- Профільний металевий лист з полімерним покриттям;
Зовнішні стіни:
- збірні, з сендвіч-панелей:
- Зовнішня сторона – профільний металевий лист з полімерним покриттям;
- Утеплювач: Пінополіуретан;
- Внутрішня сторона – гладкий металевий лист з полімерним покриттям;
Секційні ворота:
- Секційні ворота із сендвіч-панелей, з прозорими вставками, ручний механізм, з дверима – 2 шт.;
Освітлення:
- LED світильник, 36W, лінійний – 12 шт.;
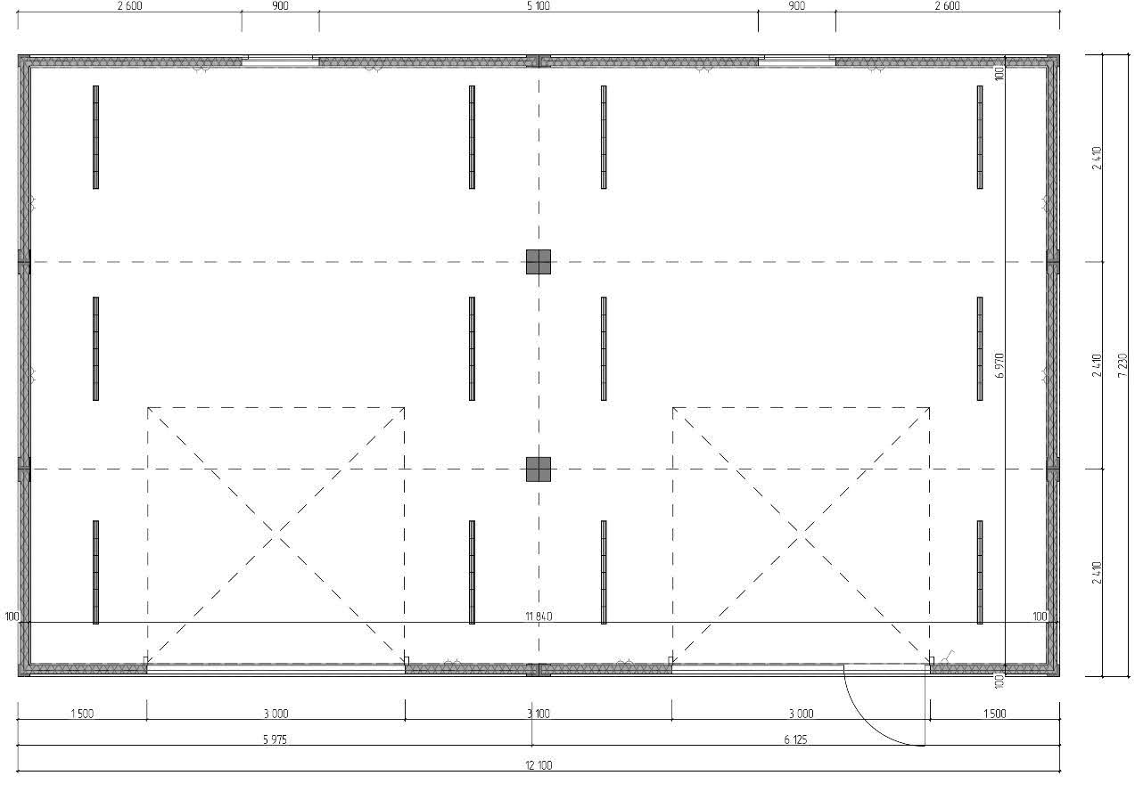
План :




